Projekt FRHE

Projekt FRHE

 
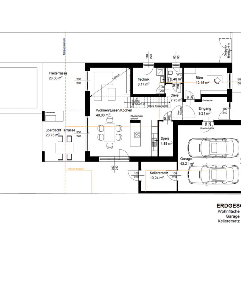
Hauskonzept

Aufeinander abgestimmt: In Kooperation mit einer talentierten Architektin entstand ein vollständiges Hauskonzept. Architektur und Innenarchitektur kommt also mehr oder weniger aus einer Hand und vor allem sind sie bestens aufeinander abgestimmt. Die Inneneinrichtung kann so nämlich schon bei der Planung mitberücksichtigt werden.

Formart-Leistungen

  • Koordinierte Architektur und Innenarchitektur
  • Einrichtungskonzept
UP